AFFIDATI AD MT STUDIO
MT Studio di Milano è un’impresa edile attiva nella progettazione, nella costruzione e nella ristrutturazione di stabili civili e commerciali.
Se sei alla ricerca di uno studio specializzato nella progettazione nel privato, contatta MT e richiedi informazioni. Qui di seguito, invece, puoi visionare alcuni dei lavori di maggior valore che MT Studio ha eseguito nell’ambito dell’edilizia privata.
MILANO (MI) - VIA DELLE ROSE – RISTRUTTURAZIONE E REALIZZAZIONE DI 10 UNITÀ IMMOBILIARI
Il progetto è consistito nella ristrutturazione integrale di un edificio terra cielo per la realizzazione di nuove 10 unità abitative distribuite su tre livelli: al piano terreno sono stati realizzati 5 appartamenti dotati di giardini privati, al piano primo ulteriori 3 appartamenti provvisti di balconi e al piano sottotetto altre 2 unità immobiliari caratterizzate da moderni balconi a tasca. Aspetto centrale dell’intervento è stato l’efficientamento energetico, raggiunto grazie alla posa di infissi in legno–alluminio ad alto isolamento termico, alla realizzazione di impianti fotovoltaico e solare e all’isolamento termico dell’involucro con materiali performanti. Grazie a tali soluzioni l’intero complesso garantirà elevate prestazioni energetiche, comfort abitativo e un significativo risparmio sui consumi. Nondimeno, l’intervento è stato progettato avendo cura dei materiali scelti e delle rifiniture per elevarne l’estetica.
MILANO (MI) – VIA BUDRIO – NUOVA COSTRUZIONE DI SEI UNITÀ IMMOBILIARI A SCHIERA
L’intervento in corso d’opera prevede la realizzazione di un complesso plurifamiliare a due piani composto da sei unità immobiliari a schiera. L’intero lotto è funzionalmente suddiviso in due aree di cui una dedicata alle residenze private e l’altra a parti comuni ove verrà costruita una piscina condominiale esterna. L’intera area sarà dotata di due accessi, uno pedonale dalla via Budrio e uno carrabile sul lato ovest per garantire l’accesso ai box auto previsti per ciascuna unità immobiliare. La configurazione consente la realizzazione di un complesso a basso impatto insediativo con un’architettura che reinterpreta in chiave contemporanea gli elementi tipici della cascina lombarda. Inoltre, il fabbricato è stato progettato con un’attenzione particolare nella scelta dei materiali; quelli previsti per gli esterni permetteranno un alto grado di isolamento termico, con minor impatto ambientale e maggior risparmio sui consumi.
MILANO (MI) – VIA LOMELLINA - SUPERBONUS 110%
L’intervento svolto secondo la normativa “Superbonus 110%” in Via Lomellina è consistito nella riqualificazione energetica di due edifici facenti parte del medesimo condominio, interessando l’isolamento a cappotto termico dell’involucro, l’isolamento delle coperture, la realizzazione di un impianto fotovoltaico a servizio delle parti comuni e la sostituzione di serramenti e degli avvolgibili a discrezione delle proprietà. In aggiunta a tali lavorazioni sono state eseguite anche opere di manutenzione ordinaria consistenti nella pulizia della zoccolatura delle facciate, nella sostituzione delle lattonerie e nella manutenzione dei balconi e dei terrazzi. Uno dei terrazzi infine è stato ripristinato integralmente realizzando una nuova impermeabilizzazione secondo le normative UNI.
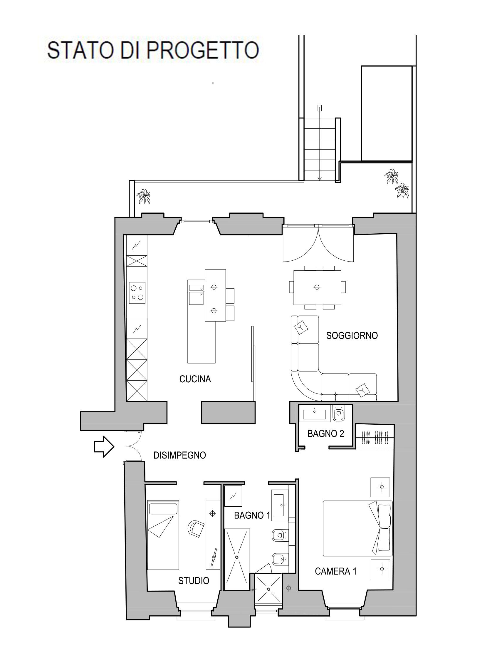
MILANO – VIA ANFOSSI – RISTRUTTURAZIONE APPARTAMENTO
Ristrutturazione completa di un appartamento nelle vicinanze di Piazza Cinque Giornate. Le lavorazioni hanno previsto il rifacimento integrale del bagno, la sostituzione dei pavimenti, la fornitura e la posa in opera degli infissi interni ed esterni e la predisposizione dei nuovi attacchi per la cucina.
MILANO – VIA GIAMBELLINO – RISTRUTTURAZIONE APPARTAMENTO
Ristrutturazione completa di un appartamento nell’omonima zona. Le lavorazioni hanno previsto il rifacimento integrale del bagno, la sostituzione dei pavimenti, un nuovo impianto idrico, un nuovo impianto elettrico e la predisposizione dei nuovi attacchi per la cucina.
MILANO - VIA COMASINA – NUOVA COSTRUZIONE, CENTRO SPORTIVO
Nuova costruzione di sei campi da paddle coperti da tendostruttura in alluminio e pvc con annessi spogliatoi anch’essi di nuova costruzione. L’intervento ha seguito tutte le fasi della progettazione architettonica e strutturale comprensiva degli iter per le approvazioni e il rilascio dei permessi da parte dei vari enti trai i quali Coni, Commissione Sportiva del Comune di Milano, Commissione del Paesaggio del Comune di Milano e Vigili del Fuoco.
ARESE – VIA LEOPARDI – RISTRUTTURAZIONE VILLA SEMI-INDIPENDENTE
Ristrutturazione edilizia di una villa semi-indipendente con diversa distribuzione degli spazi interni, rinnovo delle finiture e degli impianti, nuovi pavimenti e predisposizione nuovi attacchi per la cucina. L’intervento ha previsto anche la predisposizione di opere strutturali per l’ingrandimento dello spazio dedicato al soggiorno.
BRESSO (MI) – VIA BRIOSCHI – SUPERBONUS 110% e SISMABONUS 110%
Opere di Efficientamento Sismico ed Energetico previste dalla normativa in materia di Superbonus 110% e Sismabonus 110% di un edificio storico risalente agli anni 50 a Bresso. L’intervento ha previsto, oltre alla coibentazione esterna tramite pannelli di polistirene, anche la sostituzione degli infissi e delle porte d’ingresso a bassa trasmittanza termica e l’installazione, sempre negli appartamenti interessati, dei generatori di calore dei singoli appartamenti con moderne caldaie a condensazione di ultima generazione. Per le opere relative all’efficientamento sismico è stato messo in opera il rinforzo strutturale dell’intero immobile con l’installazione di una rete esterna di fibro-cemento rinforzato ad altra prestazione sismica e la totale sostituzione della copertura con una nuova struttura in legno ad alta resistenza.
EFFICIENTAMENTO ENERGETICO E RISTRUTTURAZIONE INTEGRALE EDIFICIO UNIFAMILIARE – SARONNO
In un contesto signorile del Comune di Saronno l’Impresa si è dedicata alla integrale riqualificazione energetica di una villa residenziale degli anni ’50 che grazie agli interventi ha migliorato la propria prestazione energetica globale di ben cinque classi.
Le opere eseguite a tal fine sono consistite nella posa del cappotto termico sulla facciata e sulla copertura, nella sostituzione dei serramenti e della porta di ingresso, nonché, nel rifacimento integrale di tutti gli impianti con ulteriore posa di quello fotovoltaico.
Al miglioramento energetico si è aggiunta la ristrutturazione totale degli interni per la quale l’Impresa si è dedicata alla scrupolosa scelta dei materiali per soddisfare al meglio le esigenze del committente.
Allo stesso modo, si sono voluti curare i dettagli degli esterni posando marcapiani sulle facciate dai colori neutri, così da creare lo stile neoclassico desiderato dal cliente.
EFFICIENTAMENTO ENERGETICO EDIFICIO CONDOMINIALE, VIA CELIO – MILANO
In ambito di Superbonus l’Impresa si è occupata della riqualificazione del condominio redigendo lo studio di fattibilità ed eseguendo le opere necessarie per migliorare la sua prestazione energetica;
gli interventi hanno riguardato l’involucro dell’intero edificio con posa del cappotto termico sulla facciata e sulla copertura, nonché, alcune delle singole unità immobiliari, eseguendo ulteriori opere quali la sostituzione dei serramenti e della porta blindata, nonché, il risanamento dei balconi.
Sotto il profilo degli impianti invece è stata sostituita la caldaia condominiale.
PROGETTO VIA CASTELVETRO – MILANO
In un immobile d'epoca sito nel centro di Milano l'Impresa si è dedicata principalmente alla ristrutturazione integrale del bagno, realizzandone uno dal forte impatto visivo, elegante e all'avanguardia.
La particolarità è consistita nel creare un secondo piano di calpestio non esistente in origine, con vasca incassata e piatto doccia filo pavimento. Allo stesso modo, la scelta delle rifiniture è stata minuziosa, a partire dall'installazione del box doccia walk-in con vetro fumè, alla scelta del soffione con getto a cascata.
Per quanto riguarda gli altri ambienti della casa l'Impresa si è inoltre dedicata alla posa del retro-piano della cucina, assistendo sin dal principio il cliente nella scelta delle piastrelle, nonché, alla lamatura del parquet originario e all'installazione di un nuovo impianto di condizionamento multisplit.
PROGETTO VILLA D'EPOCA – MILANO
Il progetto è consistito nel recupero edilizio di una villa d'epoca sita nel cuore di Milano, con rifacimento integrale degli interni e restauro degli esterni.
La cura dei dettagli è stata minuziosa sia nella scelta dei materiali adoperati sia nelle rifiniture realizzate in ciascun ambiente, al fine di soddisfare l'esigenza del cliente di creare un ambiente dal tocco contemporaneo mantenendo però l'identità originaria del contesto d'epoca.
PROGETTO VIA CIGNOLI – MILANO
Focus centrale del progetto è il vuoto che acquista un valore fondamentale per il ridisegno degli spazi interni e per definire il carattere dell’appartamento.
I clienti, una numerosa famiglia di Milano, volevano un disegno di interior sinuoso e moderno, capace di accogliere le esigenze di tutti i componenti. L’intervento si è concentrato sui dettagli di arredo, attraverso linee geometriche ed essenziali combinate con texture omogenee tra loro.
L’alternanza di spazi pieni a spazi vuoti regola il ritmo di ogni spazio. L’utilizzo di controsoffitti nelle zone dei disimpegni, permette di aumentare la luminosità dell’area con luci artificiali in aggiunta a quella naturale.
Per tutte le finiture scelte, si è optato per colorazioni tenui e neutre, contraddistinte però dal forte carattere di modernità ed equilibrio. Ogni spazio, soprattutto per gli ambienti a giorno, è stato sfruttato con mensole e librerie utili per descrivere al meglio la personalità dell’appartamento. I pezzi sono realizzati e montati a mano direttamente in loco per una maggior comprensione dello spazio.
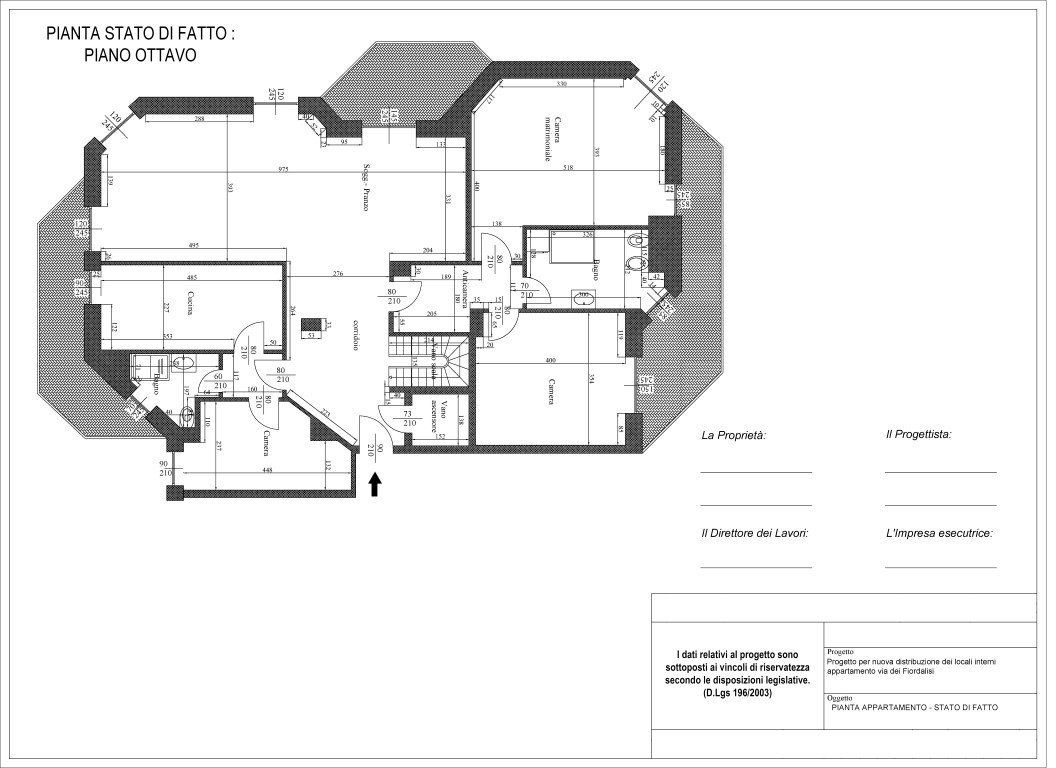
PROGETTO VIA DEI FIORDALISI– MILANO
Il progetto riguarda la ristrutturazione e l’ampliamento di un appartamento sito all’ultimo piano di un palazzo signorile degli anni ’70, zona Primaticcio a Milano. Gli ampi spazi hanno permesso di ridefinire gli ambienti a seconda delle esigenze della famiglia.
La peculiarità di questo progetto si concentra su due aspetti: il recupero del sottotetto e l’attenzione per le finiture. L’attico infatti presentava uno spazio mansardato non sfruttabile: il recupero prevede l’ampliamento della superficie interna del sottotetto, realizzando muri ciechi a filo della copertura già esistente, lo spazio del terrazzo esterno destinato a giardino pensile, e una copertura praticabile tramite scala a chiocciola esterna.
Per le finiture, diverse, infatti, sono state le scelte quali rivestimenti in cera sarda, pavimentazione in cotto con inserti in ardesia, porte stival.
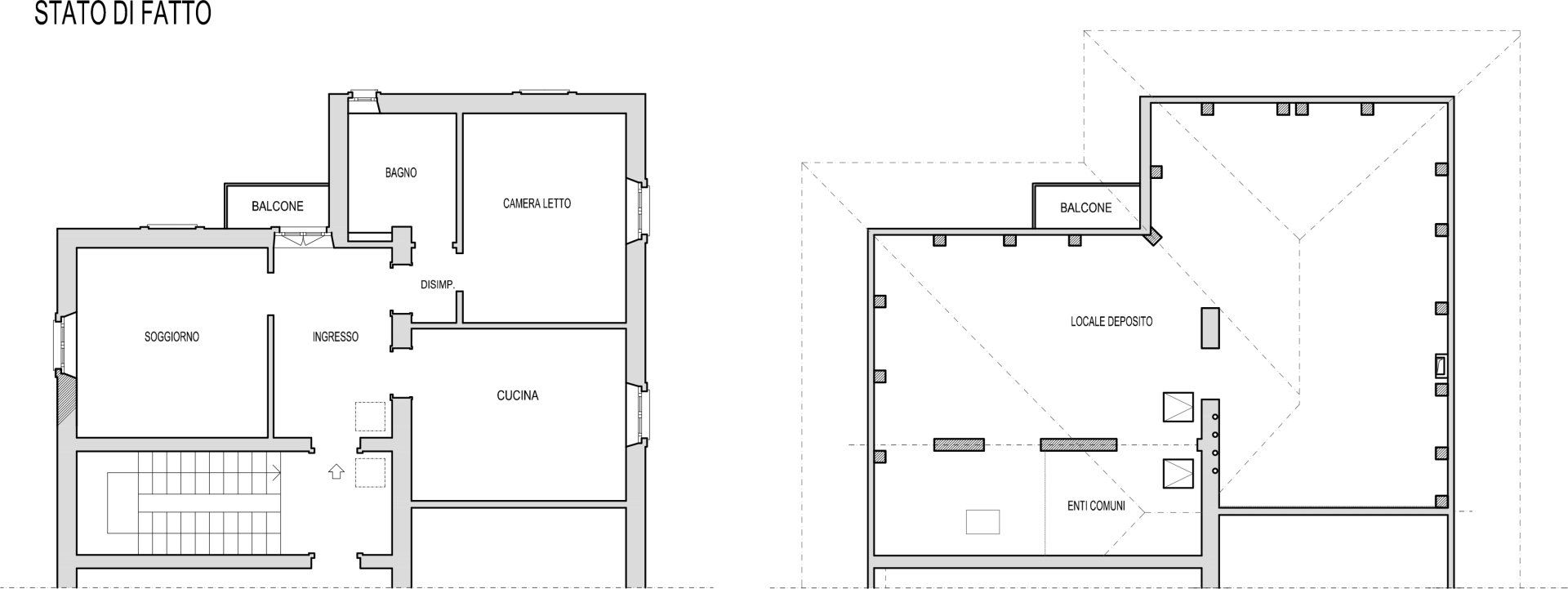
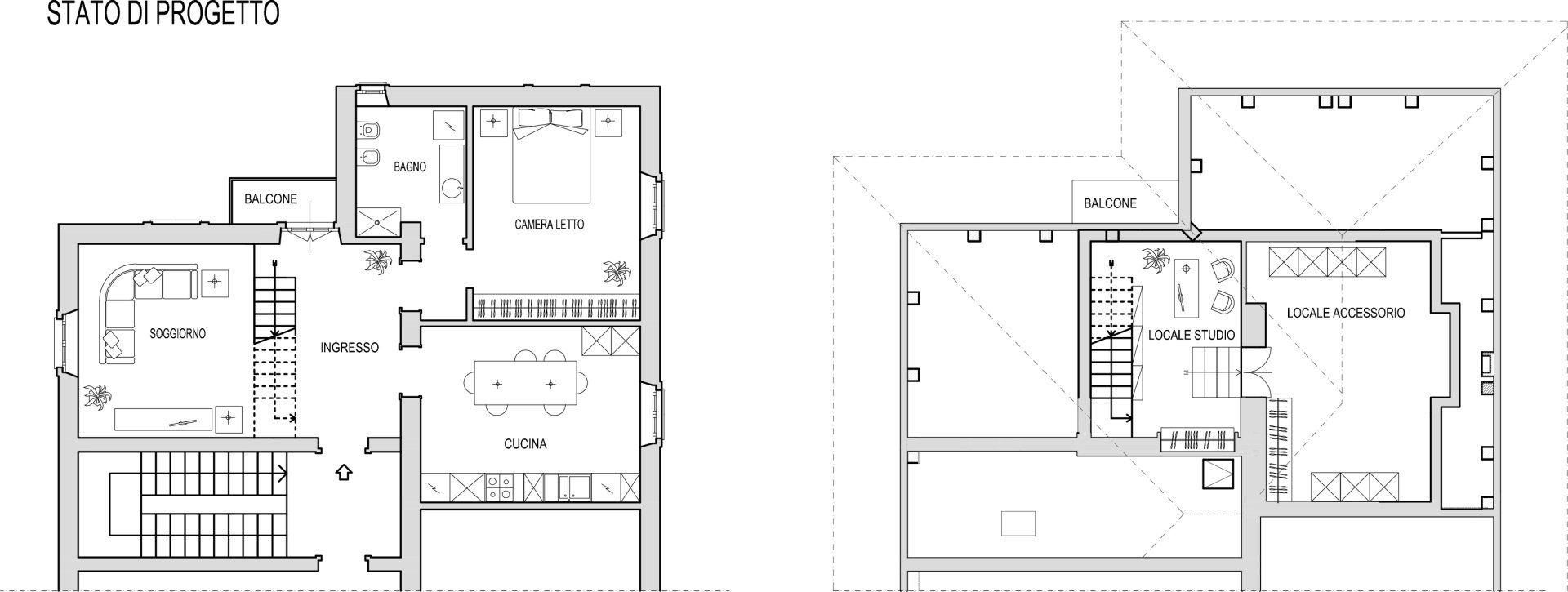
PROGETTO VIA MONCALVO – MILANO
Nel cuore del quartiere milanese Moncalvo, suddiviso in villette plurifamiliari di inizio ‘900, il progetto sviluppa diverse opere ai piani primo e sottotetto per una di queste proprietà.
Un appartamento dal carattere storico e definito, che concentra la sua nuova architettura attraverso tre linee guida: la costruzione di un nuovo spazio fruibile per locale studio nel sottotetto, la costruzione di una scala in ferro per permettere il nuovo collegamento, e l’apertura dello spazio d’ingresso. A tal fine, la dimensione interna del manufatto sembra esser, percettivamente, visibile per un unico colpo d’occhio all’interno dei nuovi spazi.
Per un maggior punto di contatto con il contesto paesaggistico esterno, il disegno in copertura del progetto prevede l’inserimento di quattro aperture velux, che aiutano a giocare con i chiaroscuri in tutto l’ambiente interno.
PROGETTO VIA LORENTEGGIO – MILANO
Fin da subito, l’idea centrale del progetto si concentra sul cambio d’uso di alcuni locali per questo piccolo appartamento in zona Lorenteggio a Milano. La richiesta del cliente, partendo da una planimetria abbastanza strutturata, è stata di frammentare gli spazi diversamente in modo da avere un’unica zona centrale compatta ed omogenea.
Massimizzando la superficie utile a disposizione, il risultato risulta una scatola definita e fluida.
La scelta delle medesime finiture per il pavimento, conferisce continuità all’ambiente, integrando la zona dei servizi all’ampio open space, in cui in confluiscono giochi di luci differenti che creano uno spazio semplificato per la vita quotidiana del cliente.
Alla sua sistematica monocraticità delle pareti e degli arredi, si somma inoltre la tonalità delle piastrelle in sfumature di blu – grigio chiaro, per accentuare l’effetto sia di modernità sia di colore. A questo però fa da contraltare la presenza di arredi con colori più vividi come il divano d’ingresso.
PROGETTO VIA MORTEO ALTO | MONEGLIA (GE)
Il quartiere “Morteo Alto” a Moneglia, in provincia di Genova, si colloca in un contesto urbano del tutto particolare, tra la cittadina, il mare e le colline liguri, a metà tra l’estetica classica dell’abitazione di campagna e la vocazione urbana.
La trasformazione di questo spazio brullo di terreno nasce con la volontà di creare un ambiente ex novo, che godesse di tutti i privilegi di una vera casa con vista sul mare. L’ambizioso progetto parte dagli scavi di sbancamenti dei terreni di campagna, scelti come luogo d’indagine, e prosegue con un accurato e sistematico studio strutturale per questa abitazione residenziale.
Ad opere compiute, l’immobile risulta perfettamente inserito nel contesto paesistico d’insieme e rispondente appieno alle richieste del committente sulla futura “casa delle vacanze”; lo sviluppo su tre livelli, con una lavorazione particolare anche per la parte esterna di terrazzo e piscina, contribuiscono a definire l’unicità di questo progetto realizzato.
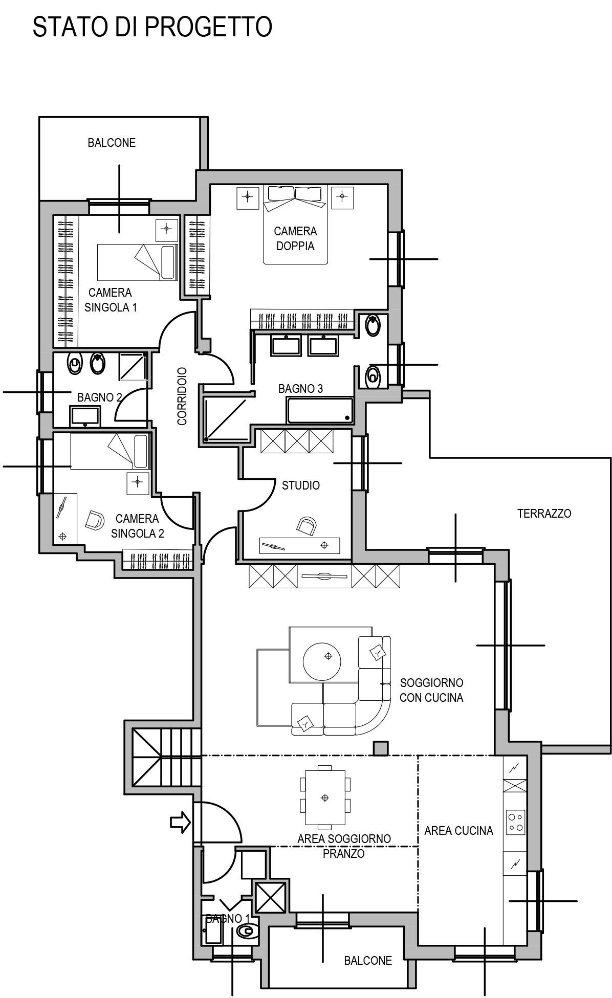
PROGETTO VIA SANT’ANDREA – MONZA
L’appartamento, destinato a una famiglia di quattro persone, è situato in un edificio signorile nella zona est della cittadina brianzola di Monza. La struttura originale prevedeva una divisione asimmetrica per i tramezzi della cucina dal resto dello spazio a giorno, mentre nella zona notte l’accesso al bagno principale era subordinato da due accessi. Il tutto però è stato trasformato in un alloggio con spazi a giorno più luminosi ed ariosi, visto che ci troviamo ad un ultimo piano e la luce è carattere fondamentale.
La nuova disposizione crea una maggiore dinamicità tra pieni e vuoti, sottolineando maggiormente il carattere di regolarità tra gli ambienti. E’ stata ricavata un nuova stanza, destinata allo studio, e sono stati demoliti i tramezzi della cucina, distribuendo lo spazio in maniera più omogenea.
Lo studio dei complementi d’arredo si concentra sulla purezza degli oggetti, partendo dalla cucina a vista con isola centrale, con sportelli tagliati al laser e laccati di bianco e veder salvia, il pavimento in parquet color marrone mogano, ed infine i sanitari con finitura effetto marmo.
PROGETTO VIA PORTA VOLTA – MILANO
Per la realizzazione degli arredi su misura di questo bellissimo trilocale in zona Porta Volta è stato necessario studiare gli spazi già nelle prime fasi del cantiere. In questa sede si è potuta valutare l'esposizione e la luminosità degli spazi. Lo studio preliminare ha permesso di collocare adeguatamente le tracce prima delle rasature finali ed evitare lavori inutili di adeguamento dopo la consegna finale della casa, accorciando i tempi della consegna dell'abitazione. Il progetto si è incentrato su diversi aspetti che riguardano il gusto, la funzionalità e il quotidiano dei clienti; la distribuzione delle zone, la relazione tra di esse e l'analisi della funzionalità. E' stata data molta attenzione sullo stile di vita di chi vi avrebbe abitato e quindi quali forme, al tipo di linguaggio, a quali "oggetti", potevano essere adatti a dare armonia e bellezza all'ambiente. L'arredo deve essere su misura della persona.
Nella fase finale è stata data una particolare attenzione ai dettagli; è stato fatto uno studio personalizzato con la cliente per le armonie cromatiche, gli accostamenti delle diverse materie, la morbida trasparenza dei tendaggi e l'opacità setosa dei legni. Tutti gli spazi progettuali sono stati attentamente studiati, anche quelli di passaggio, quelli più nascosti, grazie allo studio di un progetto dei mobili su misura da falegname e un progetto di luci ad hoc.
PROGETTO VIA TIRABOSCHI – MILANO
Un progetto semplice e pulito che ridisegna gli spazi interni in modo armonico e funzionale, in questo appartamento del centro storico di Milano. La zona giorno è stata allargata, creando due ambienti contigui e una visione più ampia sulle finestre che affacciano verso il cortile interno privato.
È stato ricavato un secondo bagno all’interno della camera da letto principale e rimodellato anche il bagno padronale. Tutti gli spazi sono unificati attraverso la medesima pavimentazione, favorendo una maggiore luminosità delle finiture e giocando sulla semplicità espressiva. Caratteristica particolare del progetto sono i giochi di altezza interna, determinati dalla costruzione di diversi controsoffitti in quota e arredi fissi, che aumentano la superficie disponibile a favore del cliente.
2017
Progettazione e realizzazione lavori di manutenzione straordinaria abitazione sita in Milano via Bergognone (Committente Privato)
- Importo Lavori € 50.000,00
- Involucro, pavimentazioni e rivestimenti interni, intonaci e rivestimenti esterni, impianti termici ed elettrici
2016
Progettazione e realizzazione lavori di manutenzione straordinaria abitazione sita in Milano via Lorenteggio (Committente Privato)
- Importo Lavori € 20.000,00
- Involucro, pavimentazioni e rivestimenti interni, intonaci e rivestimenti esterni, impianti termici ed elettrici
2016
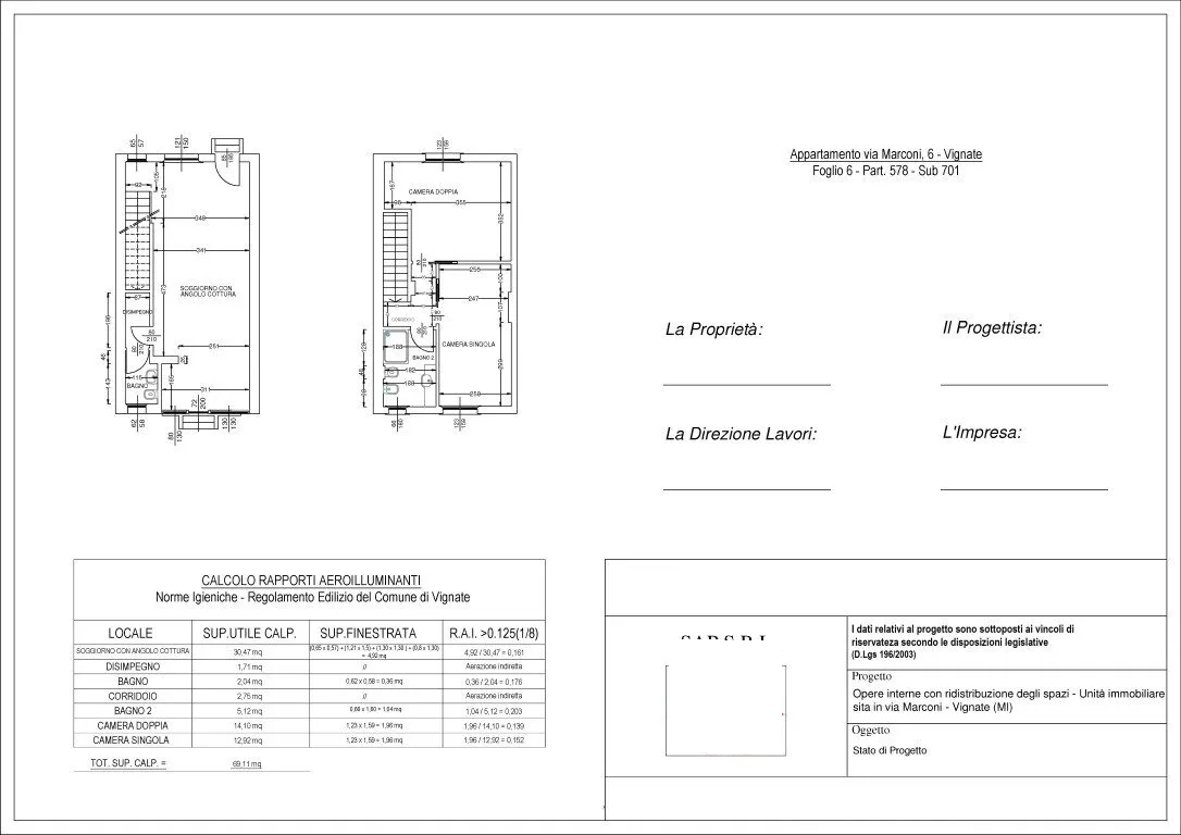
Progettazione e realizzazione dei lavori di manutenzione straordinaria unità immobiliare sita in Vignate via Marconi (Committente Privato)
- Importo Lavori € 55.000,00
- Involucro, pavimentazioni e rivestimenti interni, intonaci e rivestimenti esterni, impianti termici ed elettrici
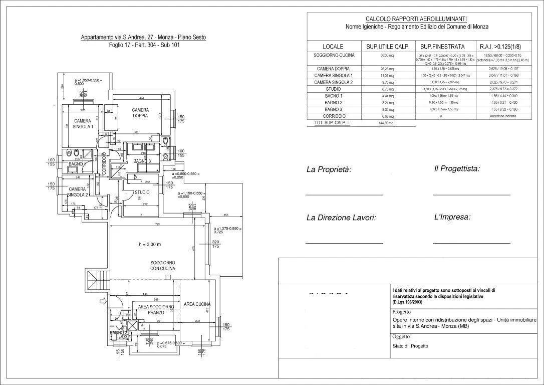
2014
Progettazione e realizzazione dei lavori di manutenzione straordinaria attico sito in Monza via Sant’Andrea (Committente Privato)
- Importo Lavori € 105.000,00
- Involucro, pavimentazioni e rivestimenti interni, intonaci e rivestimenti esterni, impianti termici ed elettrici
2010/2016
Progettazione esecutiva strutturale e direzione lavori per i lavori di costruzione nuova unità unifamiliare in Moneglia (Committente Privato)
- Importo Lavori € 350.000,00
- Scavi, strutture c.a. e muratura portante, involucro, impermeabilizzazioni, pavimentazioni e rivestimenti interni, intonaci e rivestimenti esterni, impianti termici ed elettrici
2010
Progettazione esecutiva strutturale e direzione lavori per i lavori di completamento risanamento conservativo n°5 alloggi ad uso civile abitazione siti in Magenta Via Pusterla, 8 (Committente Privato.)
- Importo Lavori € 403.000,00
- Strutture c.a. e muratura
2009
Progettazione e realizzazione dei lavori di manutenzione straordinaria di attico sito in Milano via dei Fiordalisi (Committente Privato)
- Importo Lavori € 205.000,00
- Involucro, pavimentazioni e rivestimenti interni, intonaci e rivestimenti esterni, impianti termici ed elettrici
2005
Progettazione e realizzazione di nuova sala polifunzionale presso l’Ente Nazionale Sordomuti Milano Via Boschovich (Committente: Privato in lascito ad Ente Nazionale Sordomuti.)
- Importo Lavori € 332.651,30
- Involucro, pavimentazioni e rivestimenti interni, intonaci e rivestimenti esterni, impianti termici ed elettrici
2002
Progettazione comunale ed esecutiva, Coordinatore alla sicurezza opere di Risanamento di facciata Condominio Viale Pisa, 4 - Milano (Committente: Condominio viale Pisa, 4 - Milano)
- Importo Lavori € 101.000,00
- Involucro, pavimentazioni e rivestimenti esterni, intonaci e rivestimenti esterni
2001
Direzione tecnica di cantiere per la costruzione di nuovo condominio in Settala Via Nenni (Committente: Edilgarda s.r.l. per conto Società Cooperativa del Bosco a.r.l.)
- Importo Lavori € 3.000.000,00
- Scavi, strutture c.a. e muratura portante, involucro, impermeabilizzazioni, pavimentazioni e rivestimenti interni, intonaci e rivestimenti esterni, impianti termici ed elettrici
1997/1998
Direzione dei Lavori per il complesso di edifici ad uso residenziale di nuova costruzione in Valera Fratta (LO), Via Kennedy (Committente: Megam Costruzioni S.p.A.)
- Importo lavori 1.500.000.000 lire
- Scavi, strutture c.a. e muratura portante, involucro, impermeabilizzazioni, pavimentazioni e rivestimenti interni, intonaci e rivestimenti esterni, impianti termici ed elettrici



































































































































































































































































































































































