Interventi di edilizia commerciale, progettazione e coordinamento a Milano
MT Studio di Milano è un’azienda edile specializzata nella progettazione, nella costruzione e manutenzioni ordinarie e straordinarie nell’edilizia commerciale e civile, pubblica e privata. In questa sezione del sito sono riportati alcuni tra i lavori più importanti che lo studio ha diretto ed eseguito. Per richiedere informazioni dettagliate, un preventivo gratuito e senza impegno oppure una consulenza tecnica e commerciale, non esitare a contattare gli uffici di Milano.
2007/2008
Progettazione esecutiva generale e impianti per i lavori di manutenzione straordinaria degli uffici di proprietà Poste Italiane S.p.a. siti in:
- Cardano al Campo Via Primo Levi, 1 Cardano al Campo (VA) (Committente: Poste Italiane S.p.a)
- Importo Lavori € 56.808,59
- Marnate Piazza Europa, Marnate (VA) (Committente: Poste Italiane S.p.a)
- Importo Lavori € 119.366,17
- Gaggiano Via Garibaldi, 3 Gaggiano (MI) (Committente: Poste Italiane S.p.a)
- Importo Lavori € 77.503,92
- Barzanò Via Leonardo da Vinci, 38 Barzanò (LC) (Committente: Poste Italiane S.p.a)
- Importo Lavori € 105.258,88
- Castiglione d’Intelvi nuova sede Centro Secondario di Poste Italiane S.p.A. (Committente Poste Italiane S.p.A.)
- Importo Lavori € 102.137,95
- Involucro, pavimentazioni e rivestimenti interni, intonaci e rivestimenti esterni, impianti termici ed elettrici
2007
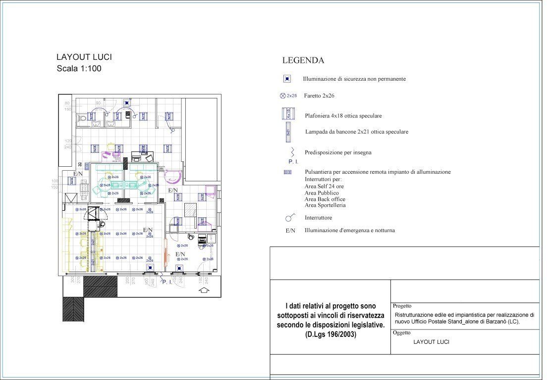
PROGETTAZIONE ESECUTIVA E REALIZZAZIONE RELAY-OUT UP BARZANÒ
2007
PROGETTAZIONE ESECUTIVA E REALIZZAZIONE RELAY-OUT UP GAGGIANO
2007-2008
PROGETTAZIONE ESECUTIVA E REALIZZAZIONE RELAY-OUT UP CADANO AL CAMPO
2007-2008
PROGETTAZIONE ESECUTIVA E REALIZZAZIONE
RELAY-OUT UP MARNATE
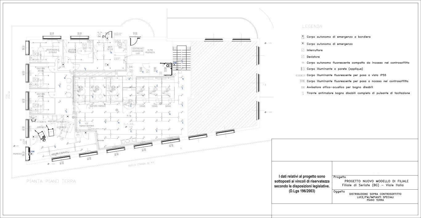
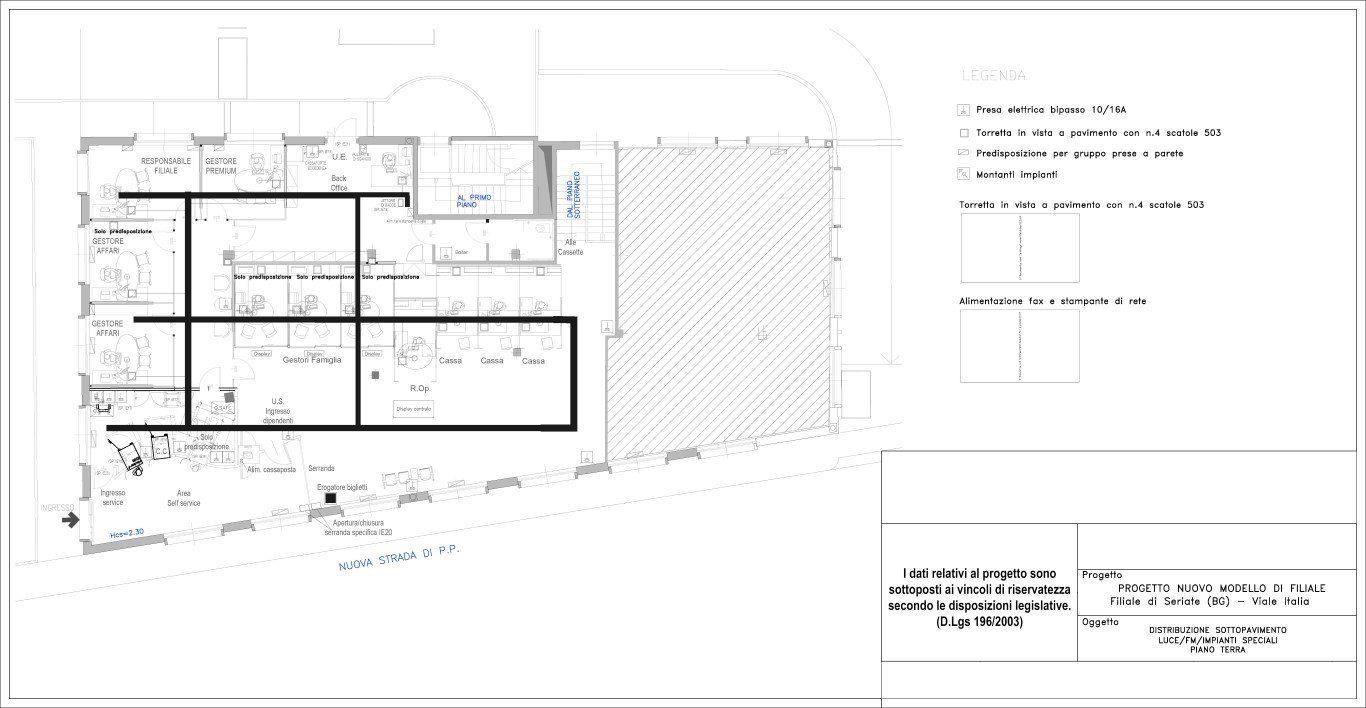
2005
Progettazione esecutiva, impianti e direzione lavori di allestimento Banca Intesa filiale di Seriate (Committente: Banca Intesa S.p.A.)
- Importo Lavori € 365.750,00
- Involucro, pavimentazioni e rivestimenti interni, intonaci e rivestimenti esterni, impianti termici ed elettrici
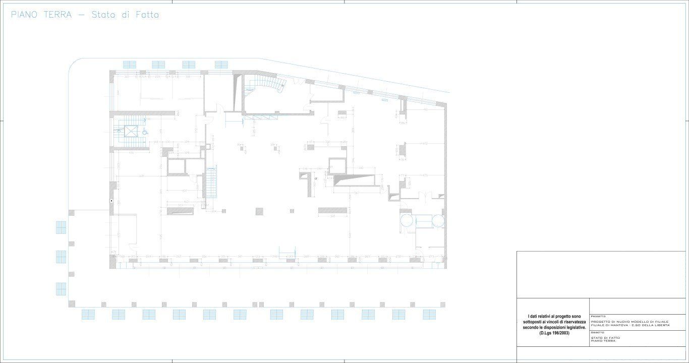
2005
Progettazione esecutiva, impianti e direzione lavori di allestimento Banca Intesa filiale di Mantova (Committente: Banca Intesa S.p.A.)
- Importo lavori € 720.000,00
- Involucro, pavimentazioni e rivestimenti interni, intonaci e rivestimenti esterni, impianti termici ed elettrici



























































