AFFIDATI AD MT STUDIO
Cerchi un’impresa edile attiva nel settore dei lavori pubblici? MT Studio di Milano ha una lunga esperienza nell’esecuzione di progetti edili di varia natura, anche per enti e amministrazioni pubbliche. Qui di seguito puoi trovare i dettagli su alcune delle più importanti realizzazioni eseguite, eseguito nell’ambito dell’edilizia pubblica.
Contatta gli uffici per richiedere più informazioni o una consulenza senza impegno.
2010
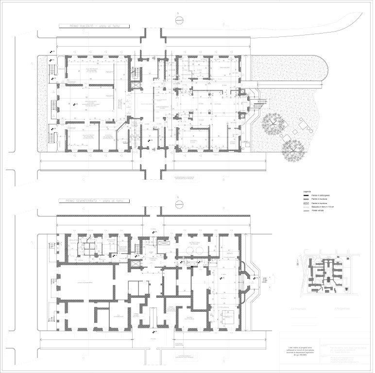
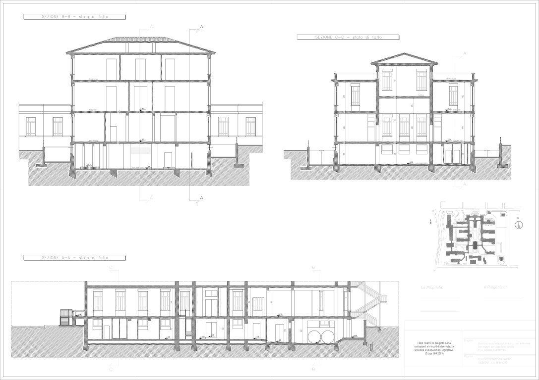
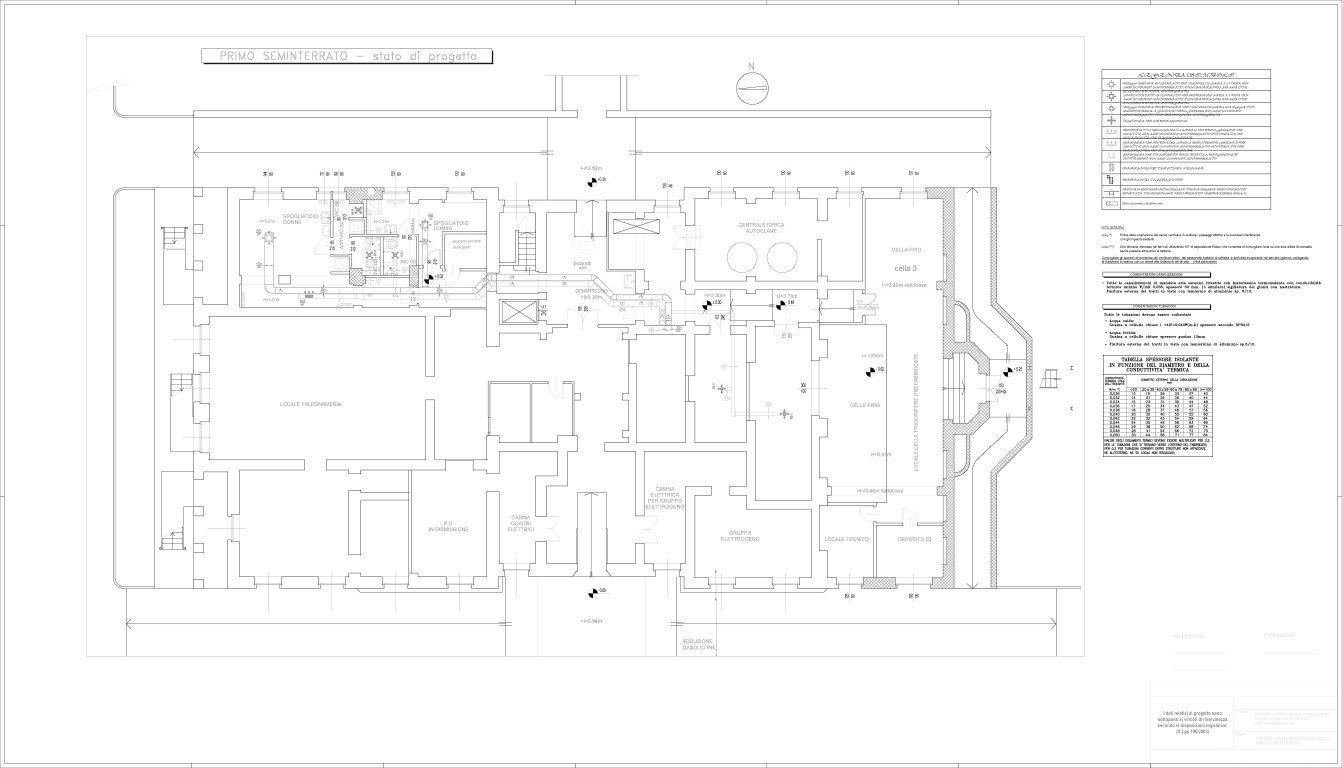
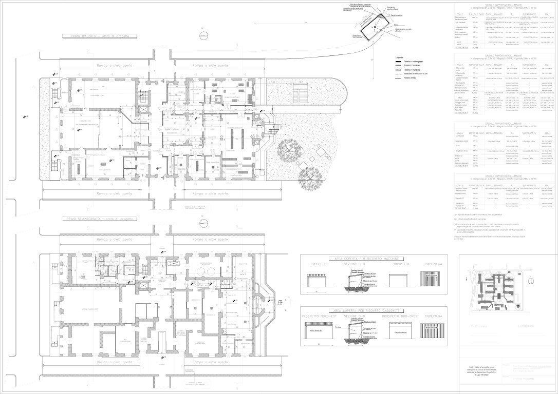
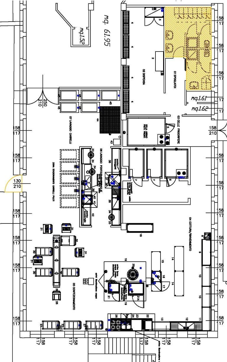
Progettazione definitiva ed esecutiva generale e impianti per i lavori nuova costruzione servizio di ristorazione con adeguamento tecnologico, attrezzature, lavori edili ed impiantistici, Ospedali Riuniti di Bergamo (Committente: Ospedali Riuniti di Bergamo)
- Importo Lavori € 377.425,37
- Involucro, pavimentazioni e rivestimenti interni, intonaci e rivestimenti esterni, impianti termici ed elettrici
2008/2010
Intervento di riqualificazione edilizia ed adeguamento funzionale e tecnologico relativi al lotto 4 dell’intervento previsto nel “Contratto di Quartiere II” in Milano – Q.re San Siro, via Tracia 4 (Scale E/F/G/H), P.zza Selinunte 3 (Scale A/B/C/D/E/F/H) (Committente: ALER Milano)
- Importo Lavori € 528.739,50
- Involucro, pavimentazioni, intonaci e rivestimenti esterni, impianti termici ed elettrici
2009
Progettazione preliminare definitiva ed esecutiva generale e impianti per i lavori di ristrutturazione servizio di ristorazione con adeguamento tecnologico, attrezzature, lavori edili ed impiantistici, Ospedale San Paolo Milano (Committente: Ospedale San Paolo Milano)
- Importo Lavori € 728.529,64
- Involucro, pavimentazioni e rivestimenti interni, intonaci e rivestimenti esterni, impianti termici ed elettrici
2009
Progettazione preliminare, definitiva ed esecutiva generale e impianti per i lavori di ristrutturazione servizio di ristorazione con adeguamento tecnologico, attrezzature, lavori edili ed impiantistici, Ospedali riuniti di Casale Monferrato, Tortona e Valenza Po (Committente: Ospedali Riuniti di Casale, Tortona e Valenza Po)
- Importo Lavori € 1.091.215,13
- Strutture c.a., e muratura portante, involucro, pavimentazioni e rivestimenti interni, intonaci e rivestimenti esterni, impianti termici ed elettrici
2009
Progettazione definitiva ed esecutiva generale e impianti per i lavori di ristrutturazione servizio di ristorazione con adeguamento tecnologico, attrezzature, lavori edili ed impiantistici, Ospedali di Chiari ed Iseo (Committente: Ospedali di Chiari ed Iseo)
- Importo Lavori € 293.068,98
- Involucro, pavimentazioni e rivestimenti interni, intonaci e rivestimenti esterni, impianti termici ed elettrici
2005/2006
Lavori di manutenzione straordinaria della Chiesetta in un nuovo Spazio Trotter ad uso polivalente nel Complesso scolastico di Via Giocosa n° 46 (Committente: Comune di Milano)
- Importo Lavori € 532.638,35
- Involucro, pavimentazioni e rivestimenti interni, intonaci e rivestimenti esterni, impianti termici ed elettrici
2002/2004
Direzione tecnica di cantiere ristrutturazione Scuola elementare e materna di Via Galvani, Milano – appalto 33/02 Comune di Milano (Committente: COMUNE DI MILANO)
- Importo Lavori € 2.000.000,00
- Scavi, strutture c.a. e muratura portante, involucro, impermeabilizzazioni, pavimentazioni e rivestimenti interni, intonaci e rivestimenti esterni, impianti termici ed elettrici
2002/2004
Direzione tecnica di cantiere manutenzione straordinaria immobili adibiti ad edilizia residenziale pubblica di via Rizzoli, 73/87, Milano – appalto 190/01 Comune di Milano (Committente: COMUNE DI MILANO)
- Importo Lavori € 2.500.000,00
- Involucro, pavimentazioni e rivestimenti interni, intonaci e rivestimenti esterni
2002/2004
Progettazione esecutiva strutturale n°23 ascensori manutenzione straordinaria q.re Calvairate,V.le Molise 47, Via Etruschi, 9, Via Tomei, 1 e 2, Via Calvairate 1 e 3, P.zza Insubria 1, P.le Martini, 15 Milano – (Committente: ALER Milano)
- Importo Lavori € 850.000,00
- Strutture c.a.
2002/2003
Direttore tecnico di cantiere lavori di sopralzo e ampliamento del municipio di Paderno Dugnano – (Committente: Comune di Paderno Dugnano)
- Importo Lavori € 750.000,00
- Strutture c.a., involucro, impermeabilizzazioni, pavimentazioni e rivestimenti interni, intonaci e rivestimenti esterni, impianti termici ed elettrici






















































